Miller's Court
Item
Linked resources
| Title | Class |
|---|---|
Miller's Court application |
|
Miller's Court case study |
- Title
- Miller's Court
- Description
-
2015 Rudy Bruner Award for Urban Excellence - Gold Medal
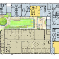
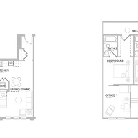
Miller’s Court in Baltimore is the rehabilitation of an abandoned manufacturing building into a safe, welcoming community for teachers and educational nonprofits. The project was conceived as a way to improve teacher retention rates and therefore the quality of education while strengthening the neighborhood and local economy. Seawall Development Company and Marks, Thomas Architects pursued a collaborative, interactive design approach that included focus group meetings with teachers and local residents. The resulting LEED Gold certified complex includes 40 rental apartments offered at discounted rates for teachers and 30,000 square feet of office space and shared meeting rooms with contemporary, loft-like interiors. A teacher resource center provides copiers for printing class materials and includes a lending library. Charmington’s, a cooperatively owned independent café in the building, is a popular gathering spot for teachers, tenants, and the community.
Interaction is a key component of life and work in the $21.1 million development. The presence of Teach for America and other education, youth, and community service nonprofit tenants creates ongoing opportunities for information sharing, collaboration, and networking. Monthly brown bag lunches featuring guest speakers help promote connections among the nonprofits and with the broader community. The complex’s central, landscaped courtyard offers outdoor space for informal gatherings and community events.
The award-winning project has generated additional investment in the community of Remington as well as interest from other cities. More than a building, Miller’s Court builds economic value and social capital by connecting teachers and nonprofits, improving the surrounding neighborhood by encouraging investment and development, illustrates the value of collaborative partnerships, and demonstrates that a for-profit business can have a significant social impact. - Coverage
- Baltimore, MD
- Date
- 2009
- Subject
- supportive housing
- public education
- adaptive reuse
- housing rehabilitation
- community development
- sustainability
- Rights
- This digital collection is made available for research and educational purposes. Researchers are responsible for determining copyright status, and securing permissions for use and publication of any material. Copyright for items in this collection may be held by the creators, their heirs, or assigns. Researchers are required to obtain written permission from copyright holders and the University Archives prior to reproducing or publishing materials, including images and quotations. For inquiries about reproduction requests and permissions, please contact the University Archives at: http://library.buffalo.edu/archives/.
Item: Miller's Court


