Grand Rapids Downtown Market
Item
Linked resources
| Title | Class |
|---|---|
Grand Rapids Downtown Market application |
|
Grand Rapids Downtown Market case study |
- Title
- Grand Rapids Downtown Market
- Description
-
2015 Rudy Bruner Award for Urban Excellence - Silver Medal
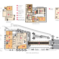
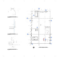
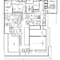
Michigan’s Grand Rapids Downtown Market is a year-round farmers market that brings local food production, distribution, marketing, and education to the community. The first LEED Gold certified public market in the country, the market features 24 indoor vendors and a seasonal 52-stall outdoor shed featuring locally grown, produced, and prepared foods. Upper floors house educational classrooms, a commercial kitchen incubator, a rooftop greenhouse, offices and meeting rooms, and event spaces. The ground floor also includes two full-service restaurants.
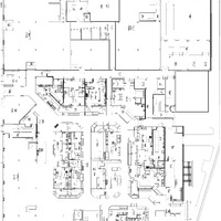
The market is located just south of the downtown business district in Heartside, one of the area’s most economically challenged neighborhoods. Vendors accept Supplemental Nutrition Assistance Program (SNAP) food stamps, and the market partners with local nonprofits to provide educational scholarships to low-income residents along with complimentary transit passes and “Produce Bucks” that can be used at the market’s grocery store. The Heartside Gleaning Initiative collects excess fresh produce from market vendors for distribution to local food pantries.
The Downtown Market celebrates the local food system by linking the Grand Rapids community with many of the 12,220 farms in 11 surrounding counties and attracts a diversity of customers and additional investment to the southern edge of downtown. Educational programming is at the core of the market’s mission, and classes on cooking and nutrition are offered in the teaching kitchen, which features adjustable-height countertops that can be lowered for children. An incubator kitchen program assists start-up entrepreneurs with the development, production, and marketing of food products using a shared commercial kitchen. - Coverage
- Grand Rapids, MI
- Date
- 2013
- Subject
- public markets
- farmers' markets
- sustainability
- retail development
- food security
- youth programs
- educational programs
- business incubators
- mixed-use developments
- community development
- public health
- public-private sector cooperation
- brownfield remediation
- Rights
- This digital collection is made available for research and educational purposes. Researchers are responsible for determining copyright status, and securing permissions for use and publication of any material. Copyright for items in this collection may be held by the creators, their heirs, or assigns. Researchers are required to obtain written permission from copyright holders and the University Archives prior to reproducing or publishing materials, including images and quotations. For inquiries about reproduction requests and permissions, please contact the University Archives at: http://library.buffalo.edu/archives/.
- Media
GR01_Signature Image_Mike Buck.JPG
Site map.pdf
SitePlanRendering-REV1-meh[1] - 10-10.jpg
SitePlanRendering-REV1-meh[1] - 10-10.pdf
Basement MASTER.pdf
First Floor MASTER PLAN .jpg
First Floor MASTER PLAN .pdf
Second Floor MASTER.jpg
Second Floor MASTER.pdf
Third Floor MASTER.pdf
GR site and floor plans.jpg
GR site and floor plans.pdf
000147_Mike Buck.JPG
000148_edited.jpg
000148_Mike Buck.JPG
000149_Mike Buck.JPG
000150_Mike Buck.JPG
000151_Mike Buck.JPG
000152_Mike Buck.JPG
cheese_1_Jeffrey_Grooters.jpg
cheese_baby_market.jpg
friends_market.jpg
GR_Kids Cooking_GR.jpg
GRDM_1699_Jeffrey_Grooters.jpg
GRDMS1_197_market.jpg
greenhouse_class_market_market.jpg
Historic Photo 2.jpg
ice_cream_Jeffrey_Grooters.jpg
IMG_1760_market.JPG
IMG_5967_market.JPG
juice_back_market.jpg
produce_Jeffrey_Grooters.jpg
twolevelspeople_Jeffrey_Grooters.jpg
150416_Grand Rapids Downtown Market_Anne-Marie Lubenau_0057.JPG
150416_Grand Rapids Downtown Market_Anne-Marie Lubenau_0058.JPG
150416_Grand Rapids Downtown Market_Anne-Marie Lubenau_0060.JPG
150416_Grand Rapids Downtown Market_Anne-Marie Lubenau_0061.JPG
150416_Grand Rapids Downtown Market_Anne-Marie Lubenau_0062.JPG
150416_Grand Rapids Downtown Market_Anne-Marie Lubenau_0063.JPG
150416_Grand Rapids Downtown Market_Anne-Marie Lubenau_0064.JPG
150416_Grand Rapids Downtown Market_Anne-Marie Lubenau_0065.JPG
150416_Grand Rapids Downtown Market_Anne-Marie Lubenau_0066.JPG
150416_Grand Rapids Downtown Market_Anne-Marie Lubenau_0067.JPG
150416_Grand Rapids Downtown Market_Anne-Marie Lubenau_0069.JPG
150416_Grand Rapids Downtown Market_Anne-Marie Lubenau_0070.JPG
150416_Grand Rapids Downtown Market_Anne-Marie Lubenau_0071.JPG
150416_Grand Rapids Downtown Market_Anne-Marie Lubenau_0072.JPG
150416_Grand Rapids Downtown Market_Anne-Marie Lubenau_0073.JPG
150416_Grand Rapids Downtown Market_Anne-Marie Lubenau_0074.JPG
150416_Grand Rapids Downtown Market_Anne-Marie Lubenau_0075.JPG
150416_Grand Rapids Downtown Market_Anne-Marie Lubenau_0081.JPG
150416_Grand Rapids Downtown Market_Anne-Marie Lubenau_0082.JPG
150416_Grand Rapids Downtown Market_Anne-Marie Lubenau_0083.JPG
150416_Grand Rapids Downtown Market_Anne-Marie Lubenau_0084.JPG
150416_Grand Rapids Downtown Market_Anne-Marie Lubenau_0085.JPG
150416_Grand Rapids Downtown Market_Anne-Marie Lubenau_0087.JPG
150416_Grand Rapids Downtown Market_Anne-Marie Lubenau_0088.JPG
150416_Grand Rapids Downtown Market_Anne-Marie Lubenau_0090.JPG
150416_Grand Rapids Downtown Market_Anne-Marie Lubenau_0091.JPG
150416_Grand Rapids Downtown Market_Anne-Marie Lubenau_0092.JPG
150416_Grand Rapids Downtown Market_Anne-Marie Lubenau_0093.JPG
150416_Grand Rapids Downtown Market_Anne-Marie Lubenau_0094.JPG
150416_Grand Rapids Downtown Market_Anne-Marie Lubenau_0095.JPG
150416_Grand Rapids Downtown Market_Anne-Marie Lubenau_0096.JPG
150416_Grand Rapids Downtown Market_Anne-Marie Lubenau_0097.JPG
150416_Grand Rapids Downtown Market_Anne-Marie Lubenau_0098.JPG
150416_Grand Rapids Downtown Market_Anne-Marie Lubenau_0099.JPG
150416_Grand Rapids Downtown Market_Anne-Marie Lubenau_0100.JPG
150416_Grand Rapids Downtown Market_Anne-Marie Lubenau_0101.JPG
150416_Grand Rapids Downtown Market_Anne-Marie Lubenau_0102.JPG
150416_Grand Rapids Downtown Market_Anne-Marie Lubenau_0103.JPG
150416_Grand Rapids Downtown Market_Anne-Marie Lubenau_0104.JPG
150416_Grand Rapids Downtown Market_Anne-Marie Lubenau_0105.JPG
150416_Grand Rapids Downtown Market_Anne-Marie Lubenau_0108.JPG
150416_Grand Rapids Downtown Market_Anne-Marie Lubenau_0109.JPG
150416_Grand Rapids Downtown Market_Anne-Marie Lubenau_0110.JPG
150416_Grand Rapids Downtown Market_Anne-Marie Lubenau_0112.JPG
150416_Grand Rapids Downtown Market_Anne-Marie Lubenau_0113.JPG
150416_Grand Rapids Downtown Market_Anne-Marie Lubenau_0115.JPG
150416_Grand Rapids Downtown Market_Anne-Marie Lubenau_0116.JPG
150417_Grand Rapids Downtown Market_Anne-Marie Lubenau_0003.JPG
150417_Grand Rapids Downtown Market_Anne-Marie Lubenau_0004.JPG
150417_Grand Rapids Downtown Market_Anne-Marie Lubenau_0005.JPG
150417_Grand Rapids Downtown Market_Anne-Marie Lubenau_0006.JPG
150417_Grand Rapids Downtown Market_Anne-Marie Lubenau_0007.JPG
150417_Grand Rapids Downtown Market_Anne-Marie Lubenau_0010.JPG
150417_Grand Rapids Downtown Market_Anne-Marie Lubenau_0013.JPG
150417_Grand Rapids Downtown Market_Anne-Marie Lubenau_0014.JPG
150417_Grand Rapids Downtown Market_Anne-Marie Lubenau_0015.JPG
150417_Grand Rapids Downtown Market_Anne-Marie Lubenau_0016.JPG
150417_Grand Rapids Downtown Market_Anne-Marie Lubenau_0017.JPG
150417_Grand Rapids Downtown Market_Anne-Marie Lubenau_0018.JPG
150417_Grand Rapids Downtown Market_Anne-Marie Lubenau_0019.JPG
150417_Grand Rapids Downtown Market_Anne-Marie Lubenau_0020.JPG
150417_Grand Rapids Downtown Market_Anne-Marie Lubenau_0021.JPG
150417_Grand Rapids Downtown Market_Anne-Marie Lubenau_0023.JPG
150417_Grand Rapids Downtown Market_Anne-Marie Lubenau_0024.JPG
150417_Grand Rapids Downtown Market_Anne-Marie Lubenau_0026.JPG
150417_Grand Rapids Downtown Market_Anne-Marie Lubenau_0028.JPG
150417_Grand Rapids Downtown Market_Anne-Marie Lubenau_0029.JPG
150417_Grand Rapids Downtown Market_Anne-Marie Lubenau_0030.JPG
150417_Grand Rapids Downtown Market_Anne-Marie Lubenau_0033.JPG
150417_Grand Rapids Downtown Market_Anne-Marie Lubenau_0034.JPG
150417_Grand Rapids Downtown Market_Anne-Marie Lubenau_0035.JPG
150417_Grand Rapids Downtown Market_Anne-Marie Lubenau_0036.JPG
150417_Grand Rapids Downtown Market_Anne-Marie Lubenau_0037.JPG
150417_Grand Rapids Downtown Market_Anne-Marie Lubenau_0038.JPG
150417_Grand Rapids Downtown Market_Anne-Marie Lubenau_0040.JPG
150417_Grand Rapids Downtown Market_Anne-Marie Lubenau_0043.JPG
150417_Grand Rapids Downtown Market_Anne-Marie Lubenau_0045.JPG
150417_Grand Rapids Downtown Market_Anne-Marie Lubenau_0046.JPG
150417_Grand Rapids Downtown Market_Anne-Marie Lubenau_0048.JPG
150417_Grand Rapids Downtown Market_Anne-Marie Lubenau_0049.JPG
150417_Grand Rapids Downtown Market_Anne-Marie Lubenau_0050.JPG
150417_Grand Rapids Downtown Market_Anne-Marie Lubenau_0051.JPG
150417_Grand Rapids Downtown Market_Anne-Marie Lubenau_0052.JPG
150417_Grand Rapids Downtown Market_Anne-Marie Lubenau_0053.JPG
150417_Grand Rapids Downtown Market_Anne-Marie Lubenau_0054.JPG
150417_Grand Rapids Downtown Market_Anne-Marie Lubenau_0055.JPG
150418_Grand Rapids Downtown Market_Anne-Marie Lubenau_0001.JPG
150418_Grand Rapids Downtown Market_Anne-Marie Lubenau_0002.JPG

