Skip to main content
University Libraries
Find & Borrow
Using the Library
Research & Learn
Libraries & Collections
Help & Support
About
University at Buffalo
Rudy Bruner Award Collection
About
About the Rudy Bruner Award
Selection Process
Browse
Map Browse
Search
Scan 2 1.tif
Media
Part of
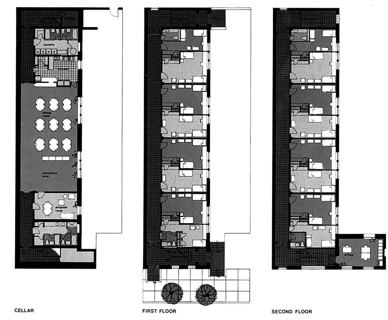
Casa Rita