Skip to main content
University Libraries
Find & Borrow
Using the Library
Research & Learn
Libraries & Collections
Help & Support
About
University at Buffalo
Rudy Bruner Award Collection
About
About the Rudy Bruner Award
Selection Process
Browse
Map Browse
Search
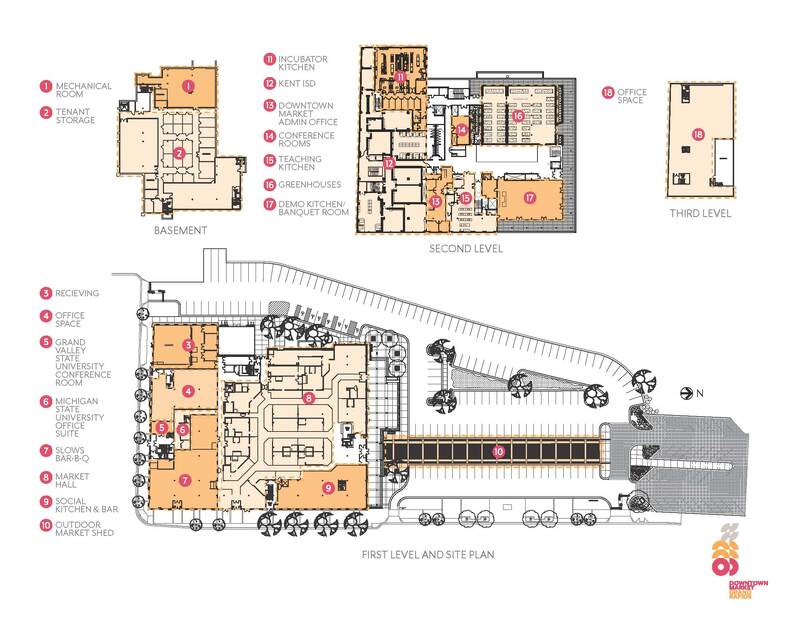
GR site and floor plans.jpg
Media
Part of
Grand Rapids Downtown Market