The Steel Yard
Item
Linked resources
| Title | Class |
|---|---|
The Steel Yard application |
|
The Steel Yard case study |
- Title
- The Steel Yard
- Description
-
2013 Rudy Bruner Award for Urban Excellence - Silver Medal
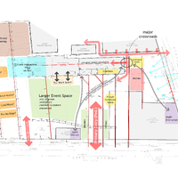
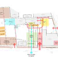
The Steel Yard redeveloped a historic steel fabrication facility into a campus for arts education, job training, and small-scale manufacturing in Providence, Rhode Island. The 3.5-acre property in the city’s Industrial Valley required extensive environmental remediation to meet regulatory requirements while retaining the industrial urban character of the site. The Steel Yard offers classes, workforce training, and fabrication space for local artists, creating an industrial arts incubator where they can share ideas, materials, and space. It has become a center for creative activity, bridging the gap between the traditional arts community on the affluent east side of Providence with manufacturing businesses and the industrial, lower-income west side.
The $1.2 million development occupies the former site of the 100-year-old Providence Iron and Steel Company. The property was purchased by two graduates of the Rhode Island School of Design and Brown University who had participated in the redevelopment of the adjoining Monohasset Mill property into artist housing. Its design is a creative response to strict regulatory requirements and the Steel Yard’s commitment to utilizing the best sustainable practices possible, even within a tight budget. Numerous public events are held on the site, including classic car shows, movie nights, and weddings. - Coverage
- Providence, RI
- Date
- 2010
- Subject
- environmental planning
- sustainability
- adaptive reuse
- brownfield remediation
- educational programs
- art education
- community development
- small-scale manufacturing
- Rights
- This digital collection is made available for research and educational purposes. Researchers are responsible for determining copyright status, and securing permissions for use and publication of any material. Copyright for items in this collection may be held by the creators, their heirs, or assigns. Researchers are required to obtain written permission from copyright holders and the University Archives prior to reproducing or publishing materials, including images and quotations. For inquiries about reproduction requests and permissions, please contact the University Archives at: http://library.buffalo.edu/archives/.
Item: The Steel Yard


